|
Thema: Ein STURMTIGER wird gebaut |
[ - Antworten - ] |
17.04.2015, 21:02 Uhr
 Gerhardtank
|
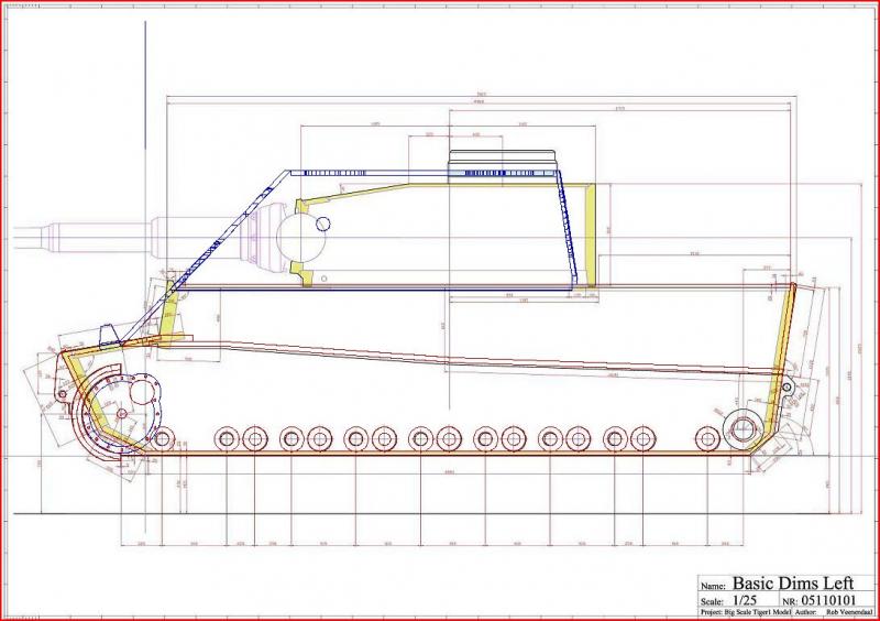
Hie noch das "Vegleichsbild" mit den Umrissen des Modells, die Roten und Blauen Linien sind die Modellkonturen. Gut zu erkennen ist die doch sehr tiefe Lage der Bohrungen, die ich aber beibehalten möchte. Beim Sturmtiger wurde ja zwar die Wanne des Tiger 1 verwendet, aber an der Front verändert, der Winkel zur Kasematte ist etwas steiler als beim Tiger.
LG Gerhard -- Probleme sind nur noch nicht gefundene Lösungen.

|
|
|
|
|
17.04.2015, 21:15 Uhr
 petitloup

|
Hallo Gerhard,
ja die Zeichnung vom Rob kenne ich, hab ich neben mir liegen, jedoch sind die Bohrungen in dem Durchmesser nicht durchgehend.
Das die Frontplatte geändert wurde ist mir fremd, das würde nähmlich eine komplette änderung der Wannenseitenbleche mit sich ziehen.
Wo hast du die Information bzgl. des geänderten Winkels her? Würde mich sehr interessieren
Schau mal hier, da sieht man sehr deutlich das der Winkel Originalbelassen wurde.
http://www.panoramio.com/photo/10962032
Nicht das du da auf dem Holzweg geräts
Viele Grüsse,
Serge
|
|
|
|
|
17.04.2015, 21:54 Uhr
 Gerhardtank
|
Hallo Serge
Die Winkel stammen aus dem Buch von Wolfgang Schneider (Elefant-Jagdtiger- Sturmtiger), siehe angehängtes Bild, bzw von Wikimedia http://commons.wikimedia.org/wiki/File:Scheme_of_Sturmtiger_armour.svg
Das Bild aus dem Museum täuscht etwas, ich hab` mich beim Vergleich auch ziemlich gewundert, dass offenbar a der Wanne recht viel verändert wurde
Dahe kommt wahrscheinlich auch der "Sprung" von der Wanne zur Kasematte, der auch auf dem Bild aus Munster gut zu erkennen ist??
LG Gerhard
PS.: Leider ist das Bild nicht ganz zu sehen, zumindest bei mir, Anklicken hilft;D
--
Probleme sind nur noch nicht gefundene Lösungen.

|
|
Beitrag 1 mal editiert. Zuletzt editiert von Gerhardtank am 17.04.2015 21:56. |
|
|
17.04.2015, 22:24 Uhr
 petitloup

|
Hallo Gerhard,
ich nochmal, bei meinem Tiger 1 habe ich gerade nochmal den Winkel nachgemessen, der beträgt 80°, also sollte meines Erachtnes nach die Wanne nicht modifiziert sein....ehrlich gesagt würde mich das auch sehr wundern, man mußte demnach auch Schweißnähte an den unteren Seitenwannenblechen vorfinden...weil ja Material aufgesetz werden müßte.
Die Deckplatte müßte ja dann auch höher über dem Antriebsrad liegen, die Frontpanzerung greift mit der Deckplatte ineinander ein...soviel Aufwand werden die nicht betrieben haben um dort eine Kasematte draufzusetzen
Ich befasse mich mit dem Sturmtiger schon seit ein paar Jahren weil mein Project auf genau diesen Aufbaut.
http://www.rcpanzer.de/apboard/thread.php?id=17883&start=421&seite=29
Ein weiteres Indiez was dagegn spricht, wenn du mal ein wenig suchst, wirst du feststellen das die Frontplatte die Alte ist, sie wurde mit dem Schneidbrenner angepaßt...wenn man die halbe Wanne umbauen würde...warum dann die alte Frontplatte drinne lassen?
Ein gutes Buch währe da noch Tiger1 and Sturmtiger in Detail von Culver und Feist und oder Panzer VI Tiger und seine Abarten von Spielberg.
Ich denke das sind erst mal ein par Fakten die du evtl. mal prüfen solltest.
In den Büchern ist dort jedenfalls nichts dergleichen vermerkt
Viele Grüsse,
Serge
|
|
|
|
|
18.04.2015, 16:45 Uhr
 Gerhardtank
|
Servus Serge
Hab`den "Fehler" erkannt, die Kotflügel täuschen in der Seitenansicht eine andere Linie vor, dadurch erscheint die Front etwas steiler, als sie sein muss! DEN kleinen "Umbau" werd` ich gleich mal angehen, zum Glück mach ich das ja am PC, da muss ich nicht Alles neu Zeichnen;D
UND::::: Lästig ist Deine "Nörgelei" absolut nicht, gute Hinweise sind prinzipiell IMMER(!!!!!) willkommen! Danke für die Tipps, immerhin ist das ja mein erstes Panzerprojekt, also bin ich auch auf solche Anregungen angewiesen.......
LG Gerhard -- Probleme sind nur noch nicht gefundene Lösungen.
|
|
|
|
|
18.04.2015, 17:21 Uhr
 petitloup

|
Hallo Gerhard,
freut mich geholfen haben zu können
Ja, manchmal steckt der fehler im Detail
Tüfftel gerade selber noch an der Federung rum...bzw an den Schwingarmen samt Lagerung, meine sind leider unterdimensioniert...kommt vor wenn man sich vorher nicht wirklich schlau gemacht hat
Frohes Schaffen dir noch.
Viele Grüsse,
Serge
|
|
|
|
|
18.04.2015, 17:35 Uhr
 Oldchap

|
Hallo Serge,
weil ich das grad lese: ich würde unbedingt versuchen, die Tragachslagerung der Schwingarme leichtgängig zu gestalten; notfalls in Wälzlagern. Viele Modelle (auch meine) kranken an zu schwergängigen Lagern. Einfacher Test (klappt bei jedem Maßstab): Stehhöhe messen, dann 20 % des Panzergewichts als Zusatzlast drauflegen und wieder wegnehmen. Höhe erneut messen. Der Panzer muß mit der Last erkennbar absinken (das ist Sache der Federung und soll hier mal egal sein), aber nach dem Wegnehmen möglichst genau auf die alte Höhe zurückkehren. Tut er das nicht, ist er zu schwergängig in den Tragachslagern! In der Praxis ergibt das ein stuckeliges Fahren im Gelände. Ideal ist es, wenn der Panzer beim zügigen Rollen über ein "punktförmiges" Hindernis mit allen betroffenen Laufrollen nacheinander so einfedert, daß die Karosse in einer geraden Linie bleibt. Macht die Wanne eine erkennbare Wellenlinie, stimmt die Lagerung nicht. -- Viele Grüße
Gerhard
_________________________
Bigtanks-Köti 1:6, Hermann-Porsche-Köti 1:6, Bigtanks-Jati 1:6
|
|
|
|
|
18.04.2015, 19:52 Uhr
 Gerhardtank
|
Hallo Serge
Dein Tipp war "Gold wert", nochmals DANKE! Bin grade am Umzeichnen, ist nicht allzuviel Arbeit, da zum Glück die wesentlichen Maße stimmen. Sogar die Position der Kasematte passt noch
Servus Gerhard
An die Lagerung mit Wälzlagern hatte ich auch gedacht, nur Buchsen ohne jedes Spiel sind sicher zu Schwergängig, Buchsen mit Spiel kommen für mit nicht in Frage! Die Bohrungen für die Achsen sind 32mm gross, da kann ich bei 12mm Schwenkachsdurchmesser mit Sicherheit noch gute Lager mit Dichtscheiben einbauen. Leichtgängigkeit bei Achsen und Wellen ist für mich eine Frage des Prinzips, auch bei meinen Bootsmodellen sind die Schraubenwellen mit Kugellagern ausgestattet und laufen in selbst gedrehten Stevenrohren.
LG Gerhard -- Probleme sind nur noch nicht gefundene Lösungen.
|
|
|
|
|
18.04.2015, 21:35 Uhr
 Gerhardtank
|
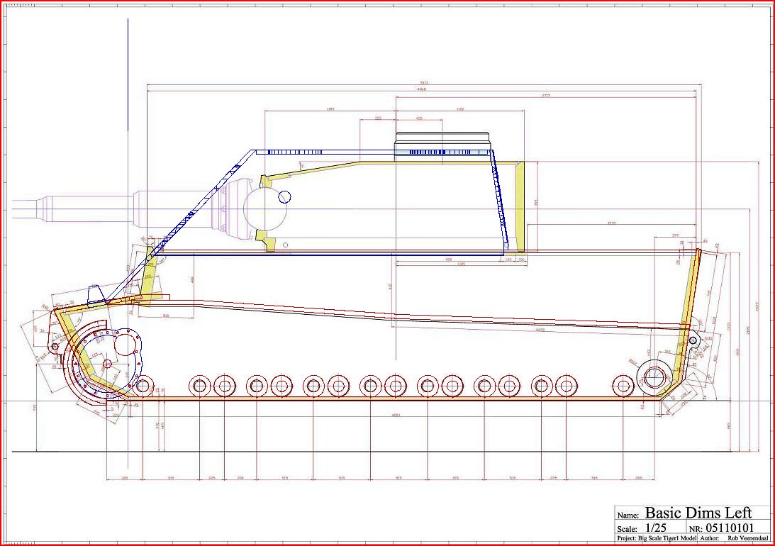
Hier nun der veränderte Aufbau, endlich stimmen alle Winkel mit den Originalzeichnungen überein!
LG Gerhard -- Probleme sind nur noch nicht gefundene Lösungen.

|
|
|
|
|
22.04.2015, 12:43 Uhr
 Gerhardtank
|
Aufgrund der Änderungen an der Wanne mußte ich natürlich auch die Kasematte ändern, das ist nun erfolgt, im Moment "kämpfe" ich mit der Kugelblende für den RW 61. Irrtümlich hatte ich angenommen, dass die Radien alle vom gleichen Punkt ausgehen, dem ist nicht so. Die eigentliche Blende hat einen anderen Mittelpunkt als die beweglichen Teile, mit dieser Erkenntnis dürfte ich einen grossen Schritt weiter gekommen sein:D Nachmittags werde ich das gleich mal überprüfen, hoffentlich passt dann Alles. Das Bild zeigt ein "Messblatt", das für die Arbeit nötig ist, die Maße sind in 1/10mm angegeben.
LG Gerhard
-- Probleme sind nur noch nicht gefundene Lösungen.
|
|
|
|
|
22.04.2015, 16:46 Uhr
 Oldchap

|
Hallo Gerhard,
das Problem bei der Lagerung der Tragarmachsen ist die starke Verkantung durch den weit außermittigen Lastangriffspunkt, der bei Zug- oder Druckfederung noch durch den ebenfalls außermittigen Kraftangriff am Federhebel ergänzt wird. Ein Lagerspiel führt da unweigerlich zur Auflage der Welle an genau 2 Kantensektoren der Buchse........... -- Viele Grüße
Gerhard
_________________________
Bigtanks-Köti 1:6, Hermann-Porsche-Köti 1:6, Bigtanks-Jati 1:6
|
|
|
|
|
22.04.2015, 19:12 Uhr
 Gerhardtank
|
quote: Original von Oldchap:
.............. Ein Lagerspiel führt da unweigerlich zur Auflage der Welle an genau 2 Kantensektoren der Buchse...........
--
Viele Grüße
Gerhard________________________
Bigtanks-Köti 1:6, Hermann-Porsche-Köti 1:6, Bigtanks-Jati 1:6
Hallo Gerhard
Drum kommen bei meinem Sturmtiger auf jeden Fall Wälzlager in die Buchsen, damit schließe ich von Vornherein schon solche Probleme aus. Da ich ja durch Michaels Zeichnungen die Bohrungen für die Drehstäbfederung habe, kann ich auch damit weiter planen, was wiederum einer besseren Lastverteilung an den Tragarmachsen zugute kommen sollte. Mit der Kugelblende zum RW 61 geht es gut Voran, später gibt`s wieder ein paar neue Bilder
LG Gerhard
-- Probleme sind nur noch nicht gefundene Lösungen.
|
|
|
|
|
25.04.2015, 21:31 Uhr
 Gerhardtank
|
ES ist vollbracht
Endlich ist die Kugelblende für den RW 61 zumindest "am Papier" fertig! War doch noch mehr Arbeit als erwartet, aber wenigstens schaut die Blende gut aus, sogar den Lauf konnte ich schon beginnen, allerdings noch ohne Schild und den Verschluss! Diese Teile kommen in den nächsten Tagen dran, jetzt hab`ich so richtig Lust zum weitermachen, der in meinen Augen schwierigste Part ist getan! Die Schwierigkeit war, dass die äussere Blende einen anderen Mittelpunkt hat als die beiden Inneren, und diese nicht über die äussere Abdeckung ragen dürfen, um einen Vorbildgerechten Eindruck zu machen!
Aber schaut mal selbst:D
LG Gerhard
--
Probleme sind nur noch nicht gefundene Lösungen.
|
|
Beitrag 1 mal editiert. Zuletzt editiert von Gerhardtank am 25.04.2015 21:31. |
|
|
26.04.2015, 20:12 Uhr
 Gerhardtank
|
Es geht voran !
Nach den Problemen mit der Blende zum RW 61 ging es heute ganz gut weiter, die Rohre zur Druckverminderung sind schon eingezeichnet, und der Verschluss ist schon in Arbeit. Da ich ja einen funktionierenden RW61 bauen möchte, muss das ganze System auch ähnlich dem Original aufgebaut werden. Das heißt, ich muss einen verschiebbaren Verschlußdeckel planen, statt einer Zündpatrone wird bei meinem Sturmi eine Glühkerze die Zündung der Raketen bewirken. Die Bilder zeigen den Aufbau des Rohres, sowie einige Details von der Rohrhinterseite, viel Spass und vielleicht auch Anregung zum Selbstbau....
Gerhard
-- Probleme sind nur noch nicht gefundene Lösungen.
|
|
|
|
|